A Carreta Hidráulica de Fixação HT92-D (altura mínima da seção transversal: 2,8 m) foi projetada para operações eficientes de aparafusamento em túneis compactos e minas subterrâneas de metal. Seu mecanismo de alimentação especial permite um aparafusamento confiável em túneis tão pequenos quanto 2,8 m × 2,8 m.
Equipada com um avançado sistema de perfuração eletro-hidráulico e um dispositivo anti-bloqueio, possui alta velocidade de perfuração, alta eficiência e desempenho estável. O design compacto e altamente manobrável garante uma operação suave em espaços confinados, melhorando as condições de trabalho e a qualidade geral da construção.
| Jumbos de perfuração hidráulico | Seção transversal adequada | 2800×2800-3500×3500mm |
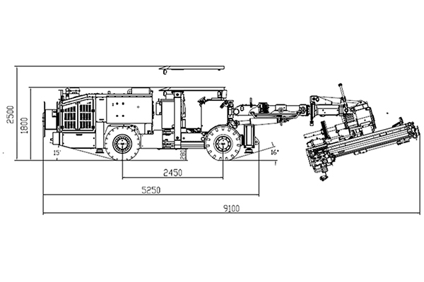
| Comprimento | 9100mm | |
| Largura | 1500mm | |
| Altura (teto abaixado) | 1800mm | |
| Altura (teto levantado) | 2500mm | |
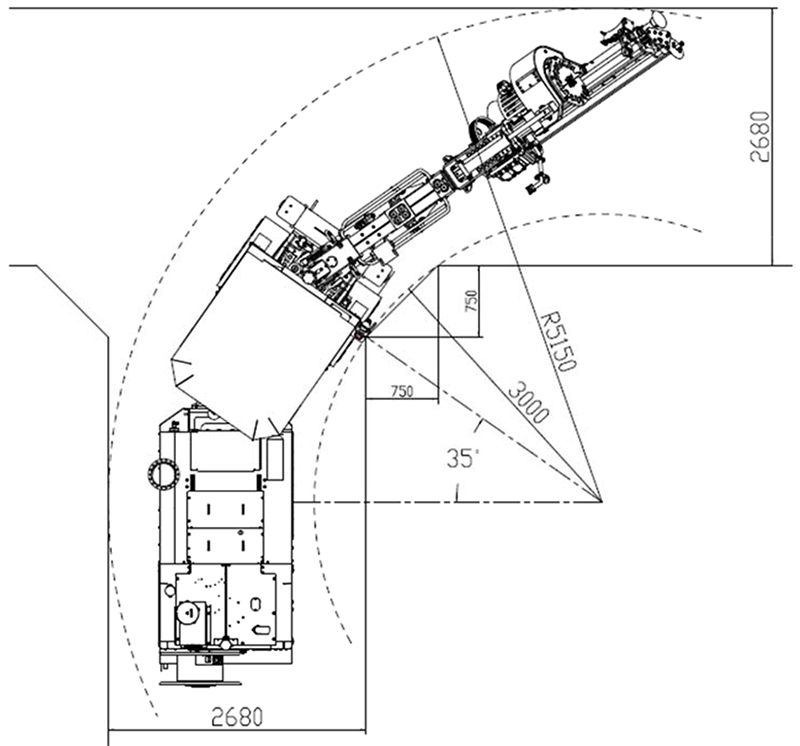
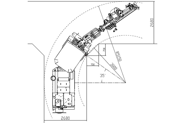
| GYTM412LD | Raio mínimo de rotação | Interno 3000mm / externo 5150mm |
| Capacidade de classificação | 14° | |
| Velocidade de deslocamento | 3.8km/h | |
| Peso total | 12000kg | |
| Distância ao solo | 280mm | |
| Perfurador hidráulico | Modelo | RC1200 |
| Potência de percussão | 14kW | |
| Frequência de percussão | 100Hz | |
| Pressão de impacto máxima | 180bar | |
| Sistema de rotação | Rotação independente | |
| Haste | R32 | |
| Tamanho do furo | 32-45mm | |
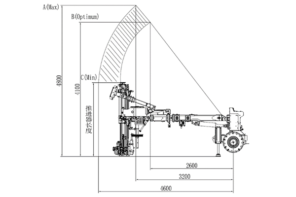
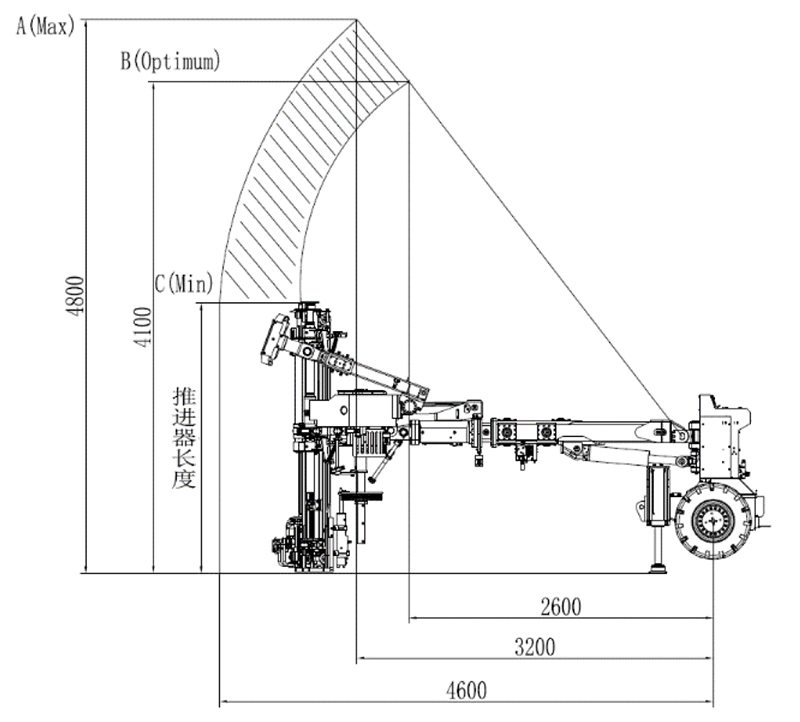
| Sistema de alimentação | Comprimento de alimentação | 2780mm |
| Comprimento do parafuso de fixação | 1800mm | |
| Pressão de trabalho | ≤10MPa | |
| Força de alimentação | 10kN | |
| Ângulo de inclinação da alimentação | +80°-25° | |
| Ângulo de rotação da alimentação | ±180° | |
| Curso de compensação da alimentação | 480mm | |
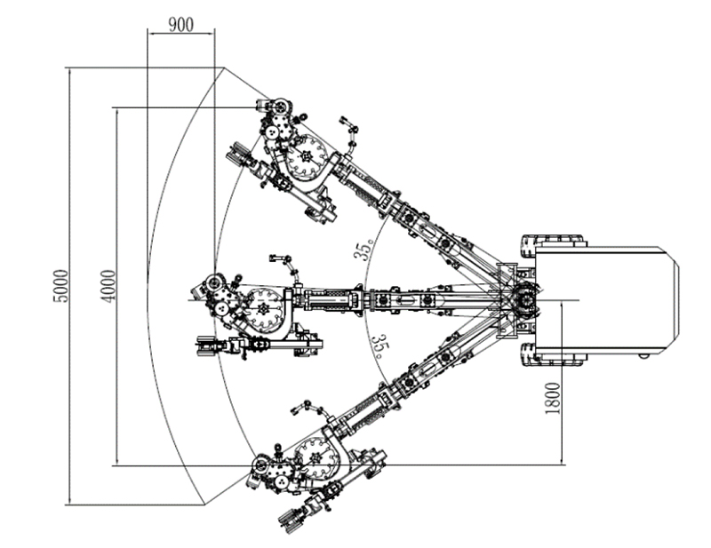
| Boom | Ângulo de inclinação | +50° / -30° |
| Extensão da lança | 900mm | |
| Ângulo de rotação | ±35° | |
| Chassis | Motor | Motor diesel Cummins estágio IV |
| Potência nominal (2400 r/min) | 54 kW | |
| Torque | 320N.m | |
| Oscilação do eixo traseiro | 7° | |
| Ângulo de direção | ±35° | |
| Sistema hidráulico | Percussão/deslocamento | 100cc/32cc |
| Capacidade máxima do tanque de óleo | 100L | |
| Finesse do filtro | 10μm | |
| Sensor de nível de óleo: equipado | ||
| Refrigerador de água: equipado | ||
A Huatai é uma empresa chinesa especializada no design e produção em lote de equipamentos de perfuração de rochas. Desde a sua fundação em 2000, a empresa tem se dedicado à fabricação de produtos de ponta e ao fornecimento dos mais altos níveis de serviço ao cliente para diversas empresas dos setores de mineração, metalurgia e engenharia de fundações.
A Huatai alcançou uma transcendência contínua e preencheu várias lacunas no mercado doméstico através de 20 anos de inovação e desenvolvimento no setor de mineração subterrânea e perfuração de rochas. Hoje, nossa linha de produtos inclui mais de 30 tipos de máquinas de perfuração de rochas para minas, divididas em três categorias: equipamentos de mineração subterrânea, equipamentos para mineração de carvão e jumbos de perfuração de poços. Anos de crescimento constante e aprimoramento resultaram em uma conquista respeitável na indústria doméstica de máquinas de perfuração de rochas, aumentando a segurança, eficiência e custo-benefício para operações de engenharia subterrânea e construção de túneis.
A Carreta de Perfuração Hidráulica de Poço GYSJZ é uma máquina de perfuração especializada e de alto desempenho, desenvolvida para atender às demandas de escavação de poços verticais profundos em rochas duras. A máquina é alimentada por um motor robusto de 132kW e equipada com três martelos hidráulicos pesados, permitindo a perfuração de diâmetros de 4 a 6 metros.
Mais +
A carreta de perfuração de poços YSJZ é um tipo de máquina de perfuração de rochas especialmente projetada para a construção de poços verticais em minas de ferro e metais não ferrosos. Trata-se de uma excelente alternativa para ser utilizada em projetos de mineração e construção subterrânea, onde outros métodos de perfuração não podem ser adotados devido a limitações técnicas ou econômicas.
Mais +
A série SJZ de perfuratriz de eixo vertical é um equipamento especial para perfurar furos de desmonte na construção de poços verticais. Ele é adequado para uma ampla gama de diâmetros de poços e possui características como operação flexível, posicionamento preciso e segurança confiável. É alimentado por ar comprimido, transmitido por um sistema hidráulico, e todos os movimentos do suporte de perfuração são mecanizados.
Mais +
Projetado especificamente para formações rochosas de dureza média, o martelo hidráulico RC600 oferece perfuração potente e precisa em uma ampla gama de aplicações exigentes. Seu design robusto e capacidades versáteis fazem dele a escolha ideal para perfurações de suporte em mineração subterrânea, instalação de tirantes, construção de rodovias, engenharia de pontes e projetos de construção complexos.
Mais +